25.13%*
Slacks Creek QLD
*Targeted Return on Investment
Upon completion & sale
- High-density population location
- Positive market factors
- Proximity to major arterial roads
- Business population growth
- 18 - 24 month fund term
- $100,000 minimum investment
*Subject to confirmation in the Information Memorandum
25.14%*
Coomera QLD
*Targeted Return on Investment
Upon completion & sale
*Subject to confirmation in the Information Memorandum
- High-density population location
- Positive market factors
- High visibility site
- Business population growth
- 18 - 24 month fund term
- $200,000 minimum investment
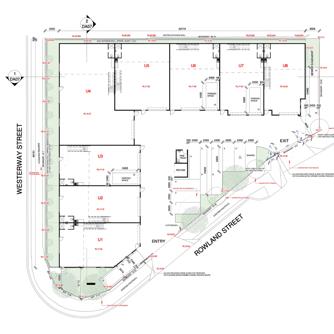
Natgen Development Trust UN25
Location:
Slacks Creek, Qld
Property Location
Easy access to the M1 Pacific Highway, 20 minutes from Brisbane CBD or 30 minutes to the Gold Coast.
$8,788,240
Completion Value
Development Project
A commercial warehouse facility comprising 8 strata-titled units ranging in size from 291 to 126m2.
25.13%
Targeted Development Return
Short Term Development Trust
The trust term will have a targeted maximum period of 24 months for the planning, design, construction and sales process.
Unitholders in the Trust will have the opportunity to participate in the potential returns that can be derived from the Australian property development industry through the construction and sale of a 8-unit strata-titled warehouse complex, located within the Brisbane-Gold Coast growth corridor.
Development Approval
The first stage of the project will see a development application lodged with Logan City Council for a warehouse design in line with the concept plans.
The property is within an infill mixed-use zoning precinct that supports a wide range of uses, including retail, childcare, warehouse, and light industrial uses.
Strategy
The project is designed to capitalise on the sustained population and economic growth across South East Queensland, particularly along the M1 corridor between Brisbane and the Gold Coast.
Slacks Creek is a mature, high-demand commercial and light industrial precinct.This site represents one of the last remaining infill development opportunities in the area.
Location
The site is positioned near IKEA Logan, offering exceptional visibility and access. The area is a well-established commercial and light industrial hub, home to a diverse mix of businesses including automotive services, logistics, trade suppliers, and retail outlets.
Investment Security
Unitholders will have a direct ownership interest in the Site and the Development Project. The Trust is a managed investment scheme regulated by ASIC in accordance with the investment provisions of the Corporations Act 2001.
Alignment of Interests
The Trusts constitution is drafted to align the interests of Unitholders and the Trustee and the objectives of the Development Manager, with fees payable to the Development Manager being predominantly performanced-based.
Media
We invite you to view our latest development site video updates that monitor site activity for Natgen Development Trust UN25.
Infrastructure to Support Economic Growth
Slacks Creek’s visibility and access make it a prime location—one reason why major tenants like IKEA selected nearby sites for high-footprint exposure. The suburb’s Main Trade Area population exceeds 413,000 and has grown 2.4% p.a. over the past eight years, outpacing the Queensland average of 2.1%, with further growth expected [1].
The Queensland Government is rolling out an extensive $107 billion infrastructure program to support this growth, including transport, health, and community networks across the Logan region. Slacks Creek, with its location on the M1 (connecting north and south) and near the Logan Motorway interchange (heading west), sits at the heart of these delivery zones—ensuring progressively enhanced connectivity and amenity.
1 AustralianPropertyMarkets.news 13 February 2025
Development Fund FAQs



















- Athol N
Natgen provides me with a great monthly income stream through its commercial property assets. The team is very professional and they always keep me well informed about the assets I have invested in.
Jamie BrennanExcellent communication and a great and easy way to diversify your investment portfolio in commercial property. Professional and provides a stable and attractive monthly income.
- Garry & Erris B
Very good communication and happy with the tax effective monthly distrubtions.
Craig BrennanI am extremely happy with the quality and transparency of the research into the investment opportunities put forward by the Natgen Group. This has enabled me to invest in commercial sites with peace of mind , and has given me tax effective , regular income at a very acceptable return.
- William Matthews
I have been investing with Natgen since 2020. What I have invested in are Steven and Brett. They are experienced, thoughtful, and always professional. I have not been able to find other fund managers who take on my experience and find investment strategies that suit my needs so well. Steven and Brett are an open book and are always happy to speak on the nut and bolts of a project which is why I am always happy to refer friends and clients to Nagen projects.
Lesley woodford-carrI like to know what I am investing in. With all projects there are risks, Natgen always has a detailed plan to address risk in the project and the market. Natgen's projects have the flexability suit my structures and fit in with my tax planning. Most importantly, I appreciate Steven's respect for my capital and the immedate monthly return on my investment.
your future now!













