FULLY SUBSCRIBED
28%*
Yatala QLD
*Targeted Return on Investment
Upon completion & sale
- High-density population location
- Positive market factors
- High visibility site
- Prime growth location
- 24 month fund term
- $200,000 maximum investment
*Subject to confirmation in the Information Memorandum
FULLY SUBSCRIBED
Rural Residential Subdivision
28%*
Yatala QLD
*Targeted Return on Investment
Upon completion & sale
*Subject to confirmation in the Information Memorandum
- High-density population location
- Positive market factors
- High visibility site
- Prime Growth Location
- 24 month fund term
- $200,000 maximum investment
Natgen Development Trust RY25
Location:
Yatala, Qld
Property Location
Situated in the high-growth Brisbane – Gold Coast corridor. This prime, development-ready location offers unmatched access to both cities via the M1 Motorway and rail links, providing an attractive balance of connectivity and rural-residential lifestyle.
$13,500,000
Completion Value
Development Project
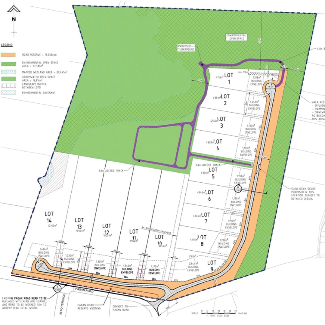
The site has an existing DA approval for a 14-lot rural residential subdivision, designed to offer spacious rural-residential living with modern accessibility.
28%
Targeted Development Return
Short Term Development Trust
The trust term will have a targeted period of 24 months for the planning, design, construction and sales process.
Development Approval
Strategy
Population Growth
South East Queensland remains one of Australia’s key population growth hubs. The continued expansion of both Brisbane and the Gold Coast has reinforced the appeal of properties within commuting distance of both cities. The Yatala area (also known as Ormeau West), in particular, offers a blend of lifestyle, connectivity, and investment potential, supported by ongoing infrastructure development.
Location
Yatala is part of a key growth area within South East Queensland, positioned within the high-demand corridor between Brisbane and the Gold Coast. The Queensland Government’s South-East Queensland 2023 Regional Plan projects the region’s population to increase by 2.2 million people, reaching approximately 6 million by 2046. This ongoing growth is expected to drive continued housing demand in the locality. The property benefits from direct access to key
Alignment of Interests
The Trusts constitution is drafted to align the interests of Unitholders and the Trustee and the objectives of the Development Manager, with fees payable to the Development Manager being predominantly performanced-based.
Investment Security
Unitholders will have a direct ownership interest in the Site and the Development Project. The Trust is a managed investment scheme regulated by ASIC in accordance with the investment provisions of the Corporations Act 2001.
Timeline*

The Project Design

Four schools, four childcare centres, one kindergarten + seven schools to come
Ten parks + twenty to come as well as two sport and recreation hubs + five to come
Three hectares of convenience shopping + twenty hectares to come (including Town Centre)
Over 10,000 residents + 35,000 to come
Household Type

Population Growth (YOY)

Weekly Household Income

Development Fund FAQs



















- Lesley woodford-carr
I like to know what I am investing in. With all projects there are risks, Natgen always has a detailed plan to address risk in the project and the market. Natgen's projects have the flexability suit my structures and fit in with my tax planning. Most importantly, I appreciate Steven's respect for my capital and the immedate monthly return on my investment.
Craig BrennanI am extremely happy with the quality and transparency of the research into the investment opportunities put forward by the Natgen Group. This has enabled me to invest in commercial sites with peace of mind , and has given me tax effective , regular income at a very acceptable return.
- Jamie Brennan
Excellent communication and a great and easy way to diversify your investment portfolio in commercial property. Professional and provides a stable and attractive monthly income.
Garry & Erris BVery good communication and happy with the tax effective monthly distrubtions.
- Athol N
Natgen provides me with a great monthly income stream through its commercial property assets. The team is very professional and they always keep me well informed about the assets I have invested in.
William MatthewsI have been investing with Natgen since 2020. What I have invested in are Steven and Brett. They are experienced, thoughtful, and always professional. I have not been able to find other fund managers who take on my experience and find investment strategies that suit my needs so well. Steven and Brett are an open book and are always happy to speak on the nut and bolts of a project which is why I am always happy to refer friends and clients to Nagen projects.
your future now!













